منتجات
وحدات المفاتيح الكهربائية للمحطات الفرعية ذات الجهد العالي
يتم تطبيق خزانة المفاتيح الكهربائية ذات الجهد العالي من النوع XGN2 لتلقي وتوزيع الطاقة الكهربائية في نظام طاقة التيار المتردد ثلاثي الطور مع الجهد المقدر 3، 6، 10KV والتردد المقدر 50 هرتز، خاصة للمناسبات التي يتم تشغيلها بشكل متكرر.
ميزات
وصف المنتجات
يتم تطبيق خزانة المفاتيح الكهربائية ذات الجهد العالي من النوع XGN2 لتلقي وتوزيع الطاقة الكهربائية في نظام طاقة التيار المتردد ثلاثي الطور مع الجهد المقدر 3، 6، 10KV والتردد المقدر 50HZ، خاصة للمناسبات التي يتم تشغيلها بشكل متكرر. نظام بسبار الخاص بها هو بسبار واحد (والذي يمكن أن يشتق شريط باص واحد مع هيكل باص جانبي وثنائي).
تتوافق خزانة المفاتيح الكهربائية مع متطلبات المعايير الوطنية للقواطع الكهربائية المغلقة المعدنية GB3906 3-35KV AC والمعيار الدولي IEC298، كما توجد أيضًا وظائف متشابكة "خمس مقاومة" مثل مقاومة الكسر والإغلاق عن طريق الخطأ لقاطع الدائرة، مفتاح فاصل مضاد للكسر والإغلاق مع الحمل، سلك/مفتاح التأريض مضاد للكسر والإغلاق مع الحمل، قاطع دائرة مضاد للإغلاق/مفتاح فاصل مع سلك/مفتاح التأريض، مضاد للدخول الفاصل الزمني المشحون عن طريق الخطأ.

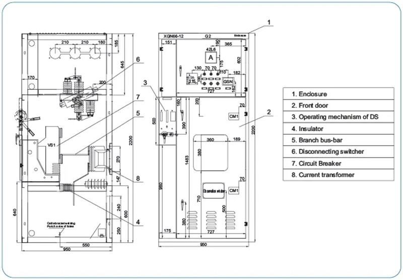
وصف الهيكل
إن مجموعة المفاتيح الكهربائية عبارة عن هيكل ثابت مغلق بالمعدن من النوع الصندوقي وتتكون المقصورة من مقاطع تعريفيةوملامح G يتم تجميعها بواسطة عدة قطع اتصال. وهي مقسمة إلى أربع حجرات، وهي حجرة بسبار. حجرة CB وحجرة القياس وحجرة الكابلات. يجب أن تتم معالجة الأجزاء بواسطة آلة التثقيب CNC وآلة الثني CNC والآلات المتطورة المتوفرة في المعالجة CNC المركز ، مما يضمن الدقة العالية في الشكل والموضع والأبعاد ، والتصنيع السريع والدقيق ، والمرن للجمع بين الخيارات المختلفة ، والتي يمكن أن تلبي متطلبات العملاء المختلفة.
الخصائص الرئيسية
1. المقصورة عبارة عن هيكل مُجمَّع ، بدون لحام ، قوة ميكانيكية عالية ومظهر فني.
2. الجزء العلوي الخلفي مخصص لمفتاح قطع الدوران GN 30-12 والجزء السفلي لمفتاح قطع الاتصال GN 19-12 C. يمكن لجهاز التعشيق الميكانيكي الذي يعمل وفقًا للإجراءات توفير حماية موثوقة للسلامة للتشغيل الشخصي والمعدات.
3. المفتاح الرئيسي المعتمد هو من النوع أحادي الكتلة، وخيارات مثل ZN63-12(VS1-12) وVD4-12
4. يتم استخدام طريقة القفل الميكانيكية الإجبارية في التعشيق بين المفاتيح الرئيسية، وقواطع التوصيل وباب الحجرة لتلبية وظيفة التعشيق "الخمسية"، مع الاستمتاع بتركيبة عشوائية مع الوحدة الرئيسية الحلقية.
المقياس التقني
لا. | غرض | وحدة | معلومات تقنية | ||
1 | الفولطية | كيلو فولت | 3.6, 7.2, 12 | ||
2 | التصنيف الحالي | A | 630 1000 | 1250 2000 | 2500 3150 |
3 | تصنيف كسر الدائرة القصيرة الحالية | كا | 20 | 31.5 | 40 |
4 | تصنيف وقت قصير تحمل التيار | كا | 20 | 31.5 | 40 |
5 | الذروة المقدرة تحمل التيار | كا | 50 | 80 | 100 |
6 | تصنيف ماس كهربائى صنع التيار | كا | 50 | 80 | 100 |
7 | المدة المقدرة للدائرة القصيرة | s | 4 | ||
8 | درجة الحماية | IP2X | |||
9 | نظام الحافلات | حافلة واحدة، حافلة واحدة مع تجاوز، حافلة مزدوجة | |||
10 | طريقة التشغيل | الكهرومغناطيسية، طاقة تخزين الربيع | |||
11 | البعد المخطط التفصيلي | مم | 950^1000x2300 (أقل من 1250 أمبير) | ||
تفاصيل المنتجات



العملية التكنولوجية

شهادة لدينا


Cاتصل بناللحصول على أفضل الاقتباس!
الوسم : وحدات المفاتيح الكهربائية للمحطات الفرعية ذات الجهد العالي، الصين، الموردين، الشركات المصنعة، مصنع، شراء، السعر، للبيع
قد يعجبك ايضا
أكثر20KV ثلاث مراحل محولات توزيع الزيت المملوءة
أكثرمحول الطاقة 220 كيلو فولت 3 المرحلة الثانية المتعرج ...
أكثرمحول توزيع من النوع المغمور بالزيت ثلاثي الطور
أكثرمحول توزيع مغمور بالزيت ثلاثي الطور 10KV
أكثر20KV محول كهربائي من النوع الجاف من الراتنج المصبوب ...
أكثرمحول طاقة عالي الجهد من الراتنج المصبوب من النوع الج...
إرسال التحقيق





