منتجات

محولات من النوع الجاف 4 ميجا فولت أمبير
لقد خضع المحول لمجموعة من الاختبارات الشاملة لضمان جودته وموثوقيته. تشمل هذه الاختبارات مقاومة العزل، والجهد العالي، والتوازن المغناطيسي، وعدم التحميل وفقدان الحمل، وارتفاع درجة الحرارة، والجهد النبضي، واختبارات الضوضاء.
ميزات
مواصفات المنتج:
يعد المحول من النوع الجاف بقدرة 4 ميجا فولت أمبير حلاً موثوقًا وفعالًا لأنظمة توزيع ونقل الطاقة. يبلغ تصنيف الطاقة 4 ميجا فولت أمبير ويعمل بجهد دخل 33 كيلو فولت وجهد خرج 660 فولت. تم تصميم المحول للعمل بتردد 50 هرتز باستخدام طريقة تبريد الهواء الطبيعي.
- تصنيف الطاقة: 4 ميجا فولت أمبير
- جهد الدخل: 33 كيلو فولت
- الجهد الناتج: 660 فولت
- التردد: 50 هرتز
- طريقة التبريد: هواء طبيعي
اختبار المنتج:
لقد خضع المحول لمجموعة من الاختبارات الشاملة لضمان جودته وموثوقيته. تشمل هذه الاختبارات مقاومة العزل، والجهد العالي، والتوازن المغناطيسي، وعدم التحميل وفقدان الحمل، وارتفاع درجة الحرارة، والجهد النبضي، واختبارات الضوضاء. تؤكد نتائج هذه الاختبارات أن المحول يلبي جميع معايير وأنظمة السلامة الدولية ذات الصلة.
- اختبار مقاومة العزل
- اختبار الجهد العالي
- اختبار التوازن المغناطيسي
- اختبار عدم التحميل وفقدان التحميل
- اختبار ارتفاع درجة الحرارة
- اختبار الجهد الدافع
- اختبار الضوضاء

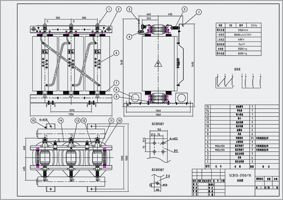
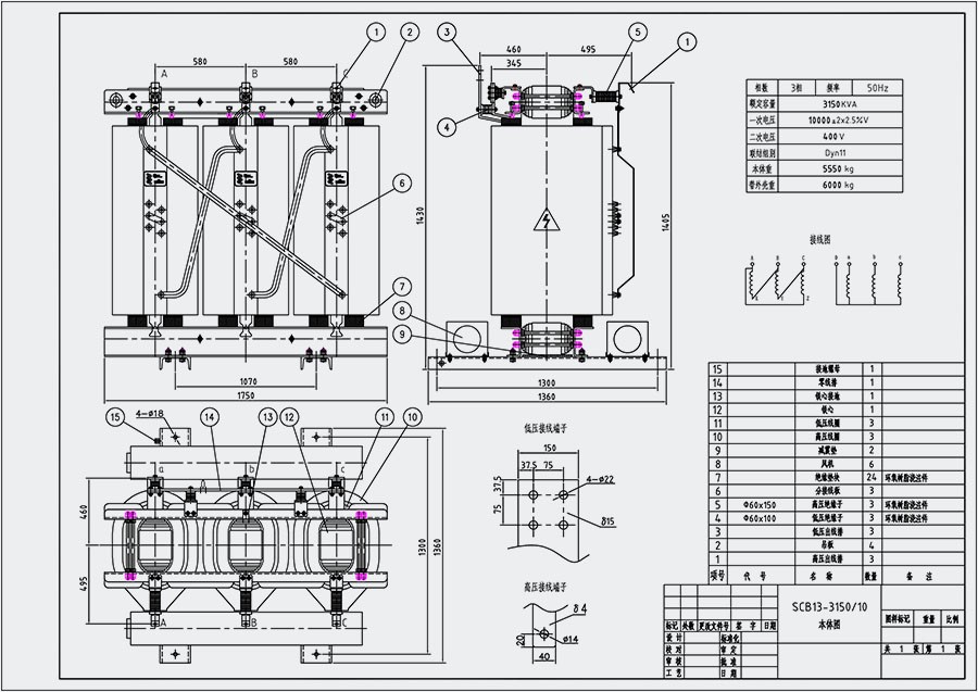
رسومات المنتج:
يأتي المنتج مزودًا بمجموعة من الوثائق الفنية بما في ذلك رسم التجميع العام والرسم التخطيطي. توفر هذه الوثائق معلومات مفصلة عن البناء والمواصفات الفنية للمحول، وهي مورد أساسي للتركيب والتشغيل والصيانة.

بشكل عام، يعد المحول من النوع الجاف بقدرة 4 ميجا فولت أمبير حلاً موثوقًا وفعالًا لأنظمة توزيع ونقل الطاقة. لقد تم تصميمه وتصنيعه وفقًا لأعلى المعايير الفنية وخضع لاختبارات صارمة لضمان جودته وموثوقيته.
الوسم : محول 4 ميجا فولت أمبير من النوع الجاف، الصين، الموردين، الشركات المصنعة، مصنع، شراء، السعر، للبيع
قد يعجبك ايضا
إرسال التحقيق

