منتجات
محولات توزيع 500 كيلو فولت أمبير
القدرة: 500 كيلو فولت أمبير
الجهد الأساسي: 11 كيلو فولت
الجهد الثانوي: 415 فولت
المرحلة: ثلاث مراحل
التردد: 50 هرتز
طريقة التبريد: مغمورة بالزيت
المعاوقة: 4.5%
ميزات
وصف المنتج:
محول التوزيع 500 KVA الخاص بنا هو منتج عالي الجودة وموثوق به مصمم لتلبية الاحتياجات المطلوبة لأنظمة توزيع الطاقة الحديثة. مع مجموعة من الميزات والفوائد، يعد هذا المحول خيارًا مثاليًا للتطبيقات التجارية والصناعية والسكنية.

مواصفات محولات التوزيع 500 كيلو فولت أمبير
|
سعة |
500 كيلو فولت أمبير |
|
الجهد الأساسي |
11 كيلو فولت |
|
الجهد الثانوي |
415 V |
|
محول تيار أساسي 500 كيلو فولت أمبير |
26.2A |
|
أمبير خرج المحول 500 كيلو فولت أمبير |
695.6A |
|
مرحلة |
ثلاث مراحل |
|
تكرار |
50 هرتز |
|
طريقة التبريد |
النفط مغمورة |
|
معاوقة |
4.5% |
|
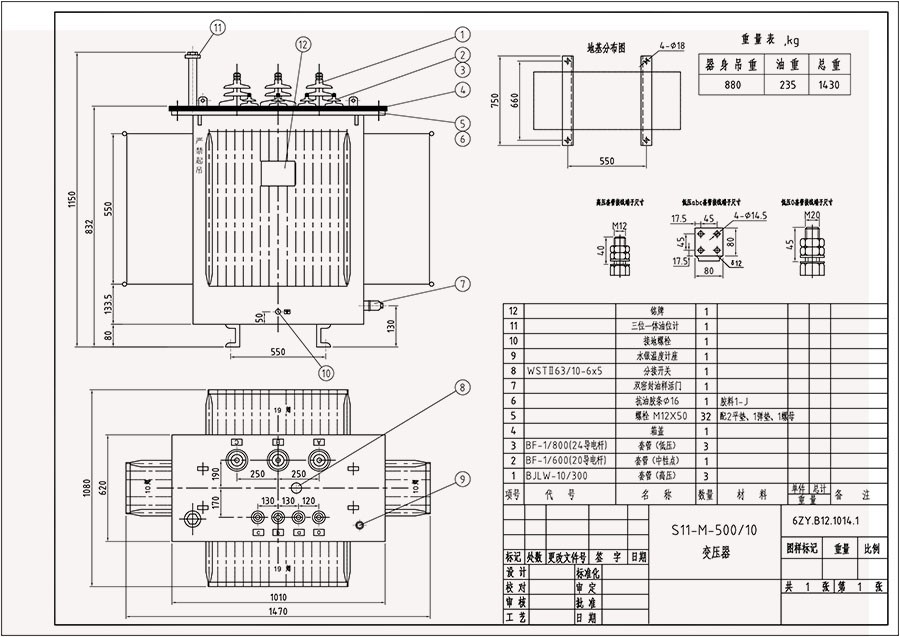
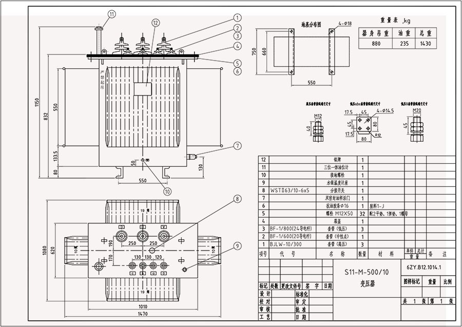
حجم المحول 500 كيلو فولت أمبير |
1470*1080*1150 مللي متر |
|
وزن المحولات 500 كيلو فولت أمبير |
1430 كجم |
|
محول 500 كيلو فولت أمبير بسعر Oltc |
USD4*14.٪7b٪7b2٪7d٪7d٪2fSET |
الرسم التفصيلي لمحولات التوزيع 500 كيلو فولت أمبير

مزايا المنتج:
- كفاءة عالية: تم تصميم محولنا لتقليل فقدان الطاقة، مما يؤدي إلى انخفاض تكاليف التشغيل وزيادة الكفاءة.
- مستوى ضوضاء منخفض: تم تصميم محولاتنا لتقليل انبعاثات الصوت إلى الحد الأدنى، مما يضمن تشغيلها بهدوء ودون انقطاع.
- البناء القوي: تم تصميم محولاتنا لتدوم طويلاً، بمواد متينة وتصميم متين يمكنه تحمل حتى البيئات الأكثر تحديًا.
- تكلفة دورة الحياة: تم تصميم محولاتنا لعمر خدمة طويل مع الحد الأدنى من الصيانة وتكلفة التشغيل المنخفضة.
- قابلة للتخصيص: نحن نقدم مجموعة من الخيارات القابلة للتخصيص لتلبية احتياجات العملاء المحددة، بما في ذلك تقييمات الجهد والطاقة المختلفة.
قطع غيار محولات 500 كيلو فولت أمبير
يشتمل محول التوزيع 500KVA الخاص بنا على مكونات عالية الجودة، بما في ذلك اللفات النحاسية أو الألومنيوم، والقلب الفولاذي، والمواد العازلة مثل ورق Nomex، والزيت. يتم اختيار هذه المواد بعناية لتوفير الأداء الأمثل والمتانة والسلامة.

لوحة محولات 500 كيلو فولت أمبير
تعرض لوحة اسم منتجنا معلومات مهمة، بما في ذلك اسم الشركة المصنعة ورقم الطراز والسعة والجهد والمرحلة والتردد وتاريخ التصنيع، من بين تفاصيل مهمة أخرى. تساعد هذه المعلومات على ضمان تحديد المنتج بشكل صحيح وتثبيته في التطبيق الصحيح.
تركيب المنتج:
لقد تم تركيب محول التوزيع 500KVA الخاص بنا بنجاح في مجموعة واسعة من التطبيقات، بما في ذلك المستشفيات ومراكز البيانات والمباني التجارية والمزيد. يمكن لفريق المهندسين ذوي الخبرة لدينا تقديم دعم التثبيت والصيانة، مما يضمن تشغيل المنتج بأمان وكفاءة طوال دورة حياته بأكملها.
التعليمات
1. كيفية تثبيت محول 500 كيلو فولت أمبير؟
لتركيب محول 500 كيلو فولت أمبير اتبع الخطوات التالية:
1.1. اختيار الموقع المناسب للمحول. يجب أن يكون الموقع مستويًا وجيد التهوية.
1.2. تأكد من أن لديك الأدوات والمعدات اللازمة للتركيب، بما في ذلك الرافعة أو جهاز الرفع، ومعدات السلامة، ونظام تصريف وتعبئة زيت المحولات.
1.3. انقل المحول بعناية إلى موقع التثبيت باستخدام شاحنة أو مقطورة.
1.4. ضع المحول على أساسه وقم بتثبيته في مكانه باستخدام البراغي.
1.5. قم بتوصيل الكابلات الأساسية والثانوية بأطراف المحولات، مع التأكد من حجمها وتصنيفها بشكل صحيح.
1.6. املأ المحول بالزيت، مع التأكد من اتباع تعليمات الشركة المصنعة.
1.7. اختبار المحول للتأكد من تشغيله بشكل سليم، بما في ذلك قراءات الجهد والتيار.
1.8. بمجرد اختبار المحول بنجاح، قم بتنشيط الدائرة ومراقبتها للتأكد من أنها تعمل بشكل صحيح.
باتباع هذه الخطوات والالتزام بجميع لوائح السلامة ومعايير الصناعة ذات الصلة، يمكنك بنجاح تركيب محول بقدرة 500 كيلو فولت أمبير.
2.كم هو محول 500 كيلو فولت أمبير؟
تكلفة محول 11 كيلو فولت 5 00 كيلو فولت أمبير: 4*14.00 دولار أمريكي/المجموعة
3. كم عدد الأمبيرات في محول 500 كيلو فولت أمبير؟
أمبير المحولات 11 كيلو فولت 500 كيلو فولت أمبير: 26.2 أمبير/695.6 أمبير
4. ما هي مقاومة محولات 500 كيلو فولت أمبير؟
مقاومة المحولات 500 كيلو فولت أمبير: 4.5%
الوسم : محول توزيع 500 كيلو فولت أمبير، الصين، الموردين، الشركات المصنعة، مصنع، شراء، السعر، للبيع
قد يعجبك ايضا
إرسال التحقيق




